Bifamiliare in vendita

Reggio Nell'Emilia, Via Mari - Centro
€ 295.000
Prezzo aggiornato
5 locali 5 locali
153 Mq 153 Mq
3 bagni 3 bagni

Bifamiliare in vendita

Reggio Nell'Emilia, Via Mari - Centro

Descrizione annuncio

CENTRO STORICO

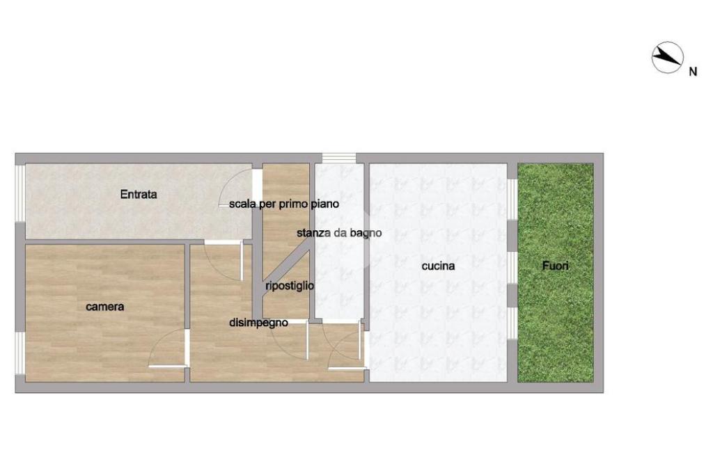
Immobilmedia Srl propone in esclusiva, in pieno centro storico, porzione di fabbricato terra-tetto con due appartamenti con ingresso separato.

Ogni alloggio è dotato di caldaia individuale a condensazione, climatizzazione, impianto acqua, gas e luce autonomi.

Completamente ristrutturato tra il 2025 e 2026.

Prezzo comprensivo di tutti gli arredi.

Al piano terra troviamo il primo alloggio composto da soggiorno con angolo cucina, disimpegno notte, bagno e camera da letto matrimoniale con sbocco su cavedio privato.

Al primo piano si trova il secondo alloggio che si compone di soggiorno-pranzo, cucina, camera da letto matrimoniale, bagno con finestra oltre a mansarda collegata direttamente dove troviamo la seconda camera da letto, il secondo bagno e vano soffitta.

Libero subito.

Contattandoci, risponderemo con cortesia alle vostre domande e potrete richiedere gratuitamente la valutazione del vostro immobile con l'esclusivo sistema TValuta.

Mostra tutto

Nelle vicinanze

Trasporto pubblico Trasporto pubblico
stazione di Reggio Emilia
stazione di Reggio Emilia
630 m
Reggio Emilia Santa Croce
Reggio Emilia Santa Croce
1,2 Km
Viale Piave
Viale Piave
280 m
Via Eritrea
Via Eritrea
340 m
Reggio Viale Piave
Reggio Viale Piave
460 m
Ricariche auto elettriche Ricariche auto elettriche
Eneldrive Piazza dal Pòpol Giòst
220 m
Eneldrive Palazzo Vescovile
360 m
Eneldrive Nobili
390 m
Eneldrive Via Giorgione
390 m
Eneldrive Piazza del Tricolore
560 m
Scuole Scuole
Istituto musicale pareggiato "A. Peri"
150 m
Scuola primaria statale "G. Carducci"
220 m
Istituto comprensivo "L. da Vinci"
240 m
Scuola secondaria di primo grado "L. da Vinci"
270 m
I.T.C. "Scaruffi-Levi-Tricolore"
310 m
Farmacia Farmacia
Farmacia Comunale della via Emilia
160 m
Farmacia Centrale
400 m
Farmacia della gabella
500 m
Farmacia del Parco
700 m
Farmacia della Ghiara Farmacie comunali riunite
730 m
Ospedali Ospedali
Azienda ospedaliera Arcispedale Santa Maria Nuova
1,7 Km
Casa di cura policlinica Villa Verde
2,4 Km
Supermercati Supermercati
Coop UNO
700 m
Coop Porta Castello
750 m
Coop Reggio Est
910 m
Conad Le Vele
990 m
Eurospar
1,0 Km
Negozi Negozi
La Boulangerie
180 m
Intimissimi
200 m
Khan Mini Market
210 m
Le Simpatiche Canaglie
240 m
Kappa di Sposi
290 m
Bar Bar
The Craftsman
500 m
Cafè Fontanesi
550 m
Canossa Bistrot
550 m
Dimmelo tu
590 m
Baretto
760 m
Ristoranti Ristoranti
La Gargotta del Popol Giost
80 m
Tigelliamo
140 m
Taiko
190 m
I'Ciripasso
290 m
Ristorante caffetteria dei chiostri
320 m
Mostra tutto

Caratteristiche

Rif.:
61175528
Piano:
1 di 2 (Piano su più livelli)
Camere da letto:
3
Arredamento:
Completo
Condizionamento:
Autonomo
Ascensore:
No
Mostra tutto
Prezzo Prezzo
€ 295.000
Rata mutuo Rata mutuo
€ 1.391 / mese
Spese annue Spese annue
€ 0
Proponi il tuo prezzoProponi il tuo prezzo
Immobile valutato con T·Valuta

Classe Energetica

C
C
C
C
C
C
C
C
C
EP globale non rinnovabile:
234.50 kW h/m² anno
EP globale rinnovabile:
22.34 kW h/m² anno
EP invernale del fabbricato:
EP estiva del fabbricato:
Anno di costruzione:
1800
Riscaldamento:
Autonomo
Tipo impianto:
A radiatori
Tipo alimentazione:
Metano

Prezzo ridotto di €1 (8%%)

Ti interessa visionare l'immobile?

Fissa un appuntamento  Fissa un appuntamento

Richiedi informazioni

Clicca su Leggi per aprire l'informativa
* Questi campi sono obbligatori

Calcola il tuo mutuo

Semplice e senza impegno
Anticipo

( % )
Mutuo

( % )

pochi semplici passi

inserisci i tuoi dati
Questionario completato
Grazie per aver richiesto un appuntamento senza impegno con un nostro Consulente del Credito e Assicurativo.

Hai inserito correttamente tutti i dati necessari e a breve riceverai una e-mail con un link da convalidare per inviare i tuoi dati.
Affiliato
Immobilmedia Srl
Viale Regina Elena, 16/B 42100 Reggio Nell'Emilia (RE)

Il nostro staff


  • Ahmed Ashraf Aly
    Affiliato

  • Francesca Giosa
    Coordinatrice

  • Marcello Lombardini
    Affiliato

  • Ahmed Hamam Ahmed Abdeltawwab Rashed
    Collaboratore
Viale Regina Elena, 16/B 42100 Reggio Nell'Emilia (RE)
Zona: GARDENIA-TONDO-CARROZZONE-SANTO STEFANO-OROLOGIO-FOSCATO-RONCINA
Mostra su mappa
Orari: Dal LUNEDI' al VENERDI' 09:00 - 13:00 e 15:00 - 20:00. Il SABATO 09:00 - 13:00 e 15:00 - 18:00 - E' sempre consigliato l'appuntamento.
Affiliato
Immobilmedia Srl
Viale Regina Elena, 16/B 42100 Reggio Nell'Emilia (RE)

2026 Tecnocasa Franchising S.p.A. - P. IVA 08365160152 - Via Monte Bianco 60/A 20089 Rozzano (MI). Ogni agenzia ha un proprio titolare ed è autonoma. Privacy policy | Policy utilizzo | Cookie policy